Come nasce un progetto di interior design, cosa trasforma un’idea in uno spazio reale?
In questo webinar, l’architetto Davide Vizzini, Interior & Exhibition Design Specialist di videocom e titolare dello studio DVDV Architettura di Milano, ci accompagna nell’analisi di un caso reale, il progetto Color ON, realizzato nel capoluogo lombardo.
Uno spazio digitale integrato
Dalla fase creativa alla documentazione tecnica nello spazio digitale integrato e coerente di Vectorworks, capace di supportare l’intero percorso produttivo di un progetto di interior design.
Dall’idea alla documentazione, con Vectorworks
L’efficacia di un approccio operativo ibrido, in cui il modello tridimensionale e il disegno tecnico bidimensionale si integrano e alimentano reciprocamente, è uno dei punti di forza di Vectorworks, che consente di far coesistere schizzi progettuali, modelli 3D, visualizzazioni fotorealistiche e documentazione tecnica in un unico flusso operativo.
In questo webinar scoprirai
- come costruire un modello digitale di progetto
- come passare dal 3D alla documentazione tecnica
- come coordinare artigiani, fornitori e cantiere
- come usare Vectorworks per gestire tutto il processo progettuale










L’idea, il progetto
L’approccio creativo e progettuale nell’interior design: spazi, arredi, studi cromatici
Il progetto nello spazio digitale
Un parallelismo costante tra ciò che viene progettato e ciò che sarà realizzato, riducendo i margini di errore: viste 3D, rendering, tavole progettuali
Il design di prodotto
La realizzazione di un elemento di arredo su misura: il tavolo TAB
Vectorworks nel flusso operativo
2D vettoriale e CAD, modellazione 3D e parametrica, motori di rendering per la resa del progetto
Progettare con le informazioni
Oggetti parametrici e BIM come integrazione non solo geometrica, ma informativa
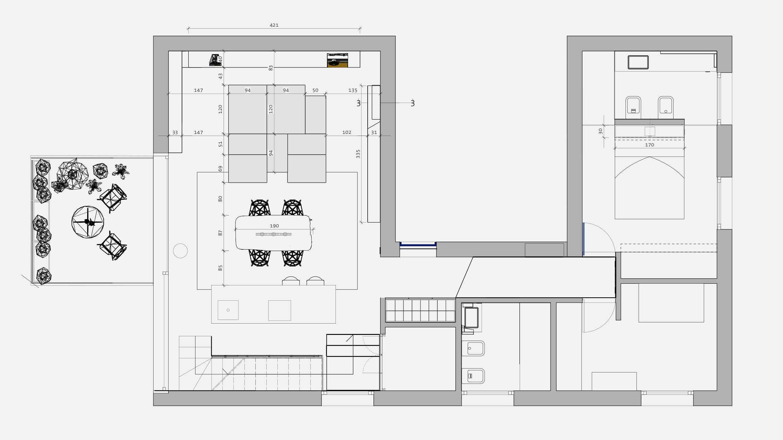
Color ON: la struttura del modello / progetto
Interfaccia, disegno 2D e viste 3D, Categorie, Lucidi Design, Lucidi Presentazione, Risorse di Vectorworks: dall’idea alla rappresentazione
Best Practice nella gestione del workflow
Dal modello digitale alla documentazione, con gli strumenti di Vectorworks
Dal digitale alla realizzazione artigianale
La progettazione integrata estende i suoi benefici oltre l’ufficio, arrivando direttamente sul tavolo dell’artigiano
Trainer: Arch. Davide Vizzini
Lo studio DVDV Davide Vizzini Architettura, fondato a Milano nel 2010, sviluppa una pratica che intreccia architettura, interni e ricerca teorica. All’interno dello studio, i progetti sono concepiti come laboratori di indagine, strumenti attraverso cui interrogare le relazioni tra pensiero, percezione e realtà materiale. Ogni intervento nasce come un processo di esplorazione che attraversa riferimenti eterogenei – dalla filosofia alla poesia, dall’arte contemporanea alla tradizione del design italiano – con l’obiettivo di comprendere come lo spazio possa diventare linguaggio e costruzione di senso.
Parallelamente all’attività professionale, Davide svolge attività di formazione e consulenza e partecipa a conferenze e seminari dedicati al progetto contemporaneo e alle nuove frontiere aperte dall’intelligenza artificiale nel campo dell’architettura e del design.
.
Appuntamento a mercoledì 1 aprile 2026, ore 16
(durata 1h30′ circa + sessione domande e risposte)




